Ci sono case che non hanno bisogno di presentazioni elaborate: basta entrarci per sentire che tutto scorre al ritmo giusto.
In questa villetta a schiera su tre livelli, ogni ambiente racconta la bellezza delle cose semplici e ben fatte.
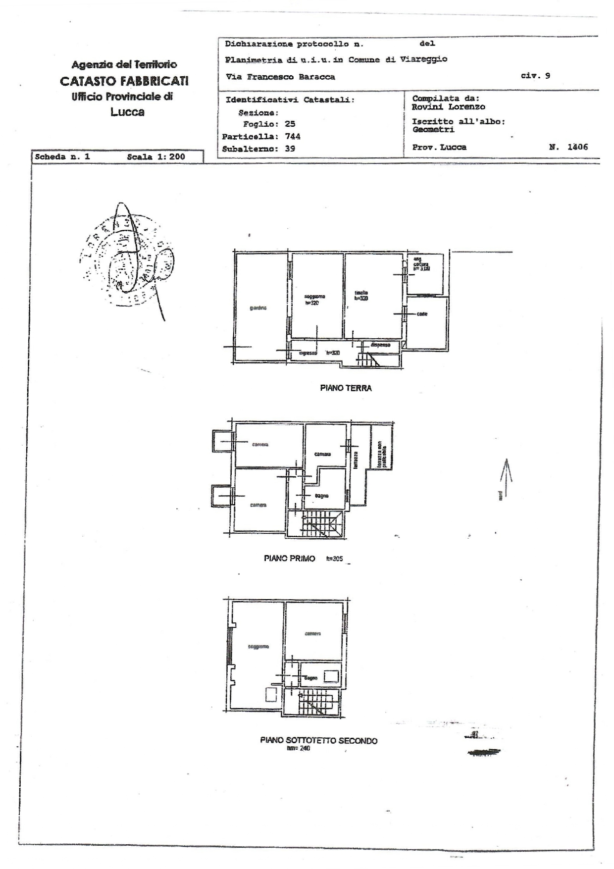
Al piano terra, la zona giorno si apre con naturalezza: salone immenso, cucina aperta sul tinello, giardino davanti, resede sul retro.
Al primo piano, tre camere accoglienti, una matrimoniale, una media e una cameretta, ognuna con la sua luce, due balconcini e una terrazza.
In mansarda, due ambienti ampi, autentici, ideali come studio, spazio creativo o camere matrimoniali, per gli ospiti.
Tre bagni, ben distribuiti su ogni piano.
Cinque camere vere.
Tutto ciò che serve, e nulla di superfluo.
Fuori, un quartiere silenzioso ma vivo: pineta a 100 metri, mare a cinque minuti a piedi, supermercati, negozi e vita di quartiere a portata di mano.
Una casa che non ti chiede nulla, ma ti dà tutto ciò che conta davvero.

























































