C’è un luogo dove la luce del mare incontra la quiete di una dimora privata.
Una villa che custodisce la bellezza semplice e autentica del vivere a Lido di Camaiore, con un giardino che avvolge la casa su tutti e quattro i lati e che diventa il palcoscenico ideale per cene d’estate, giochi di bambini o momenti di silenzio tra il profumo dei fiori.
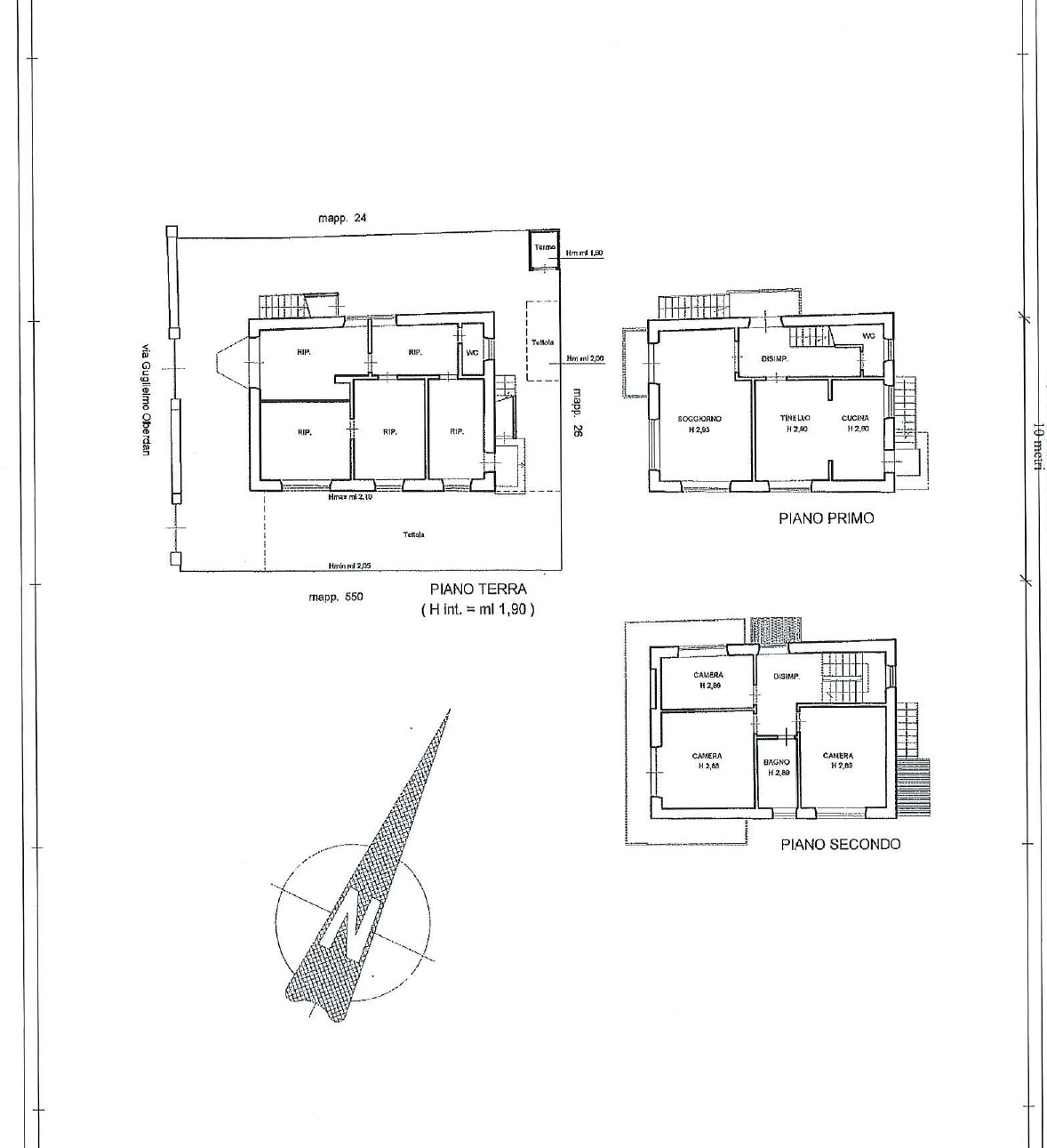
Un’ampia tettoia di 40 mq accoglie con eleganza, trasformandosi in spazio conviviale o riparo discreto per l’auto. All’interno, i tre livelli della casa si aprono a infinite possibilità di vita:
-
Piano terra: una generosa cantina di 48 mq di 1,90 di altezza, perfetta come deposito o rifugio creativo.
-
Piano primo: il cuore della quotidianità, con sala, cucina e tinello che invitano a condividere momenti, e un piccolo bagno sotto scala che aggiunge funzionalità.
-
Piano secondo: la zona notte, dove il risveglio ha il sapore del mare. Due camere matrimoniali, una cameretta e un bagno con vasca accolgono la famiglia e gli ospiti con intimità e calore.
A incorniciare la vita dentro casa, due balconi che regalano prospettive diverse: uno più raccolto, di 6 mq, e l’altro più ampio, di 14 mq, ideale per lasciarsi abbracciare dal sole e dalla brezza marina.
E poi il vero privilegio: il mare a soli 300 metri, raggiungibile a piedi in pochi minuti, per trasformare ogni giornata in una piccola vacanza.
La villa si trova in via Oberdan, una strada a senso unico e poco trafficata, che garantisce riservatezza e silenzio pur rimanendo vicinissima a tutti i servizi.
Con oltre 40 anni di storia, questa casa custodisce il fascino delle dimore di un tempo e attende chi saprà donarle nuova energia, trasformandola in un rifugio moderno e personale.
Qui il valore non è soltanto nei metri quadri, ma nel ritmo dolce che la casa offre: spazi flessibili, indipendenza, il mare vicino e la serenità di una via tranquilla.
Se cerchi un luogo dove la qualità della vita incontra la bellezza autentica di Lido di Camaiore, questa villa può essere il tuo nuovo inizio.
✨ Lasciati ispirare: vieni a scoprire la casa dove potresti scrivere la tua prossima storia.






































